تانکر آب زمینی و کاربردهای آن
- تاریخ انتشار:
تانکر آب
تانکر آب یا مخزن آب یک محفظه برای ذخیرهسازی آب است. توجه و نیاز به یک منبع آب، جهت ذخیرهسازی آب آشامیدنی، آبیاری کشاورزی، مهار آتش، دامپروری، تولید مواد شیمیایی، آمادهسازی مواد غذایی و همچنین بسیاری از مصارف دیگر استفاده میشود. پارامترهای مخزن آب شامل طراحی کلی مخزن و انتخاب مصالح ساختمانی و روکش میباشد.

مخازن آب سازهای فلزی متشکل از پایههایی فلزی (۳ پایه، یا ۴ پایه یا ۶ پایه) با یک مخزن فولادی ضدزنگ بزرگ آب در بالای آن میباشد که برج آب نام دارد و جهت نگهداری از آب استفاده میشود. البته در ساخت این مخزنها میتوان از چوب یا پلاستیک نیز استفاده کرد. بعضی از این مخزنها به سیستم آبرسانی شهری یا منطقه متصل بوده و از ۲ لوله برای ورود و خروج آب استفاده میکنند. این منبعهای آب در مواقع اُفت فشار آب باز شده تا به وسیلهٔ نیروی گرانش زمین، آب را با سرعت پایین بکشد و کمبود فشار آب و همچنین کمبود آب را جبران کند. البته بعضی از این منبعها به سیستم آبرسانی شهری متصل نیستند و فقط جهت مصرف یک سازمان، یا یک شخص در محلی نصب شدهاند.
تانکر آب زمینی
تانکر زمینی همانطور که از نامش مشخص است ، روی زمین نصب می شود و بصورت استوانه ای افقی یا استوانه ای عمودی موجود است که از نوع عمودی آن به دلیل فضای کمتری که اشغال می کند، بیشتر استفاده می شود.گاهی اوقات تانکرهای حیجم زمینی، همان جا در محل نصب، ساخته می شوند،چون اینها اینقدر حجیم هستند که پس از ساخت، امکان جابجایی شان وجود ندارد.
کاربرد تانکر آب زمینی
مخازن زمینی برای تامین آب آشامیدنی در ساختمان های مسکونی و هر جای دیگری که نیاز به آب آشامیدنی هست ، استفاده می شوند.از آنها همچنین برای تامین آب مورد نیاز برای کار کشاورزی یا کارهای ساختمانی و آبیاری باغات استفاده میشود.تانکرهای زمینی علاوه بر ذخیره آب ، برای ذخیره سازی انواع سوخت مانند نفت و گازوئیل استفاده می شوند.بطور کلی هر چیزی را میتوان در تانکرهای زمینی ذخیره کرد، حتی مایعات بهداشتی و خوراکی ها.
مخازن زمینی گالوانیزه
مخازن زمینی گالوانیزه وقتی برای ذخیره آب آشامیدنی استفاده میشوند، در طعم و مزه آب تغییری ایجاد نمی کنند، چون در ساخت آنها از هیچ گونه مواد شیمیایی استفاده نمی شود و آب وقتی در این مخازن ذخیره میشود، در طولانی مدت کیفیت خود را حفظ خواهد کرد.البته انواع مخازن آب، نسبت به هم دارای مزایا و معایبی هستند. به عنوان مثال مخازن فلزی آب از طول عمر بیشتری نسبت به مخازن آب پلاستیکی برخوردارند اما مخازن پلاستیکی بهداشتیتر هست.
موارد مصرف مخزن آب
همان طور که پیش تر به آن اشاره شد، مخازن آب چه استیل و فلزی باشند و چه پلاستیکی، برای ذخیره مایعات، به خصوص آب شرب و بعضا برای نگهداری مواد شیمیایی شامل سوختها، مواد اسیدی و بازی و دیگر سیالات این چنینی به کار میروند.
در ادامه با دیگر کاربردهای مخزن آب آشنا میشوید:
تامین آب آشامیدنی و مصرفی ساختمان های مسکونی
- اطفاء حریق توسط سازمان آتش نشانی
- آبیاری محصولات در کشاورزی
- مصارف متعدد در خط تولید صنایع مختلف؛ از جمله صنایع غذایی مانند شکلات سازی و لبنیات
نصب و اتصال مخزن آب
قیمت مخزن گالوانیزه
قیمت مخازن گالوانیزه نیز بسیار عالی و ویژه می باشد. دلیل قیمت مناسب این مخازن را میتوان به نوع ساختشان با استفاده از ورقهای فولادی و لایههای روکشی از متریال روی مرتبط دانست. علاوه بر گالوانیزه، مخازن استیل نیز در دستهی انواع مخزن فلزی جای می گیرند. مخازن استیل باتوجه به خاصیتهای مقاومتی، ضدزنگی، قدرت هیدرولیکی بالا و استانداردهای بهداشتی، بهترین گزینه برای ذخیره سازی آب شرب می باشند. اما دغدغهی اصلی استفاده از متریال استیل، زمانیست که نیاز به ساخت مخازن باظرفیت بالا وجود داشته باشد. جایی که برخلاف انواع منبع آب گالوانیزه، هزینه های ساخت مخزنهای بزرگ استیل بسیــــــــــــــار سرسام آور است!!
مخازن آب افقی
مخازن آب افقی که به آن مخزن خوابیده نیز میگویند، ارتفاع چندانی ندارد. کاربرد مخازن آب افقی بیشتر برای محلهایی است که با محدودیت ارتفاع روبرو هستند. از این مخازن همچنین در محلهایی که سطح نصب مخزن استحکام بالایی ندارد، استفاده میشود. مخزن افقی بر خلاف مخزنهای عمودی، از پایههایی از جنس پلی اتیلن تشکیل شدهاند.
امروزه برای ذخیره سازی آب در کارخانجات، کارگاه ها، برج ها و حتی منازل مسکونی کوچک از مخازن فلزی استفاده می شود و بهترین گزینه نیز مخزن گالوانیزه می باشد. اما چرا این مخزن همواره در میان خریداران از محبوبیت ویژه ای برخوردار بوده است؟ گالوانیزه در واقع از ورق فولادی که سطح آن توسط فلز روی پوشانده شده است ساخته می شود و به همین دلیل قیمت بسیار پایینی دارد از طرفی این مخزن بسیار مستحکم بوده و در برابر ضربات شدید و برخورد با اجسام تیز مقاومت بسیار خوبی دارد همچنین مزیت دیگری که مخزن گالوانیزهِ نسبت به سایر مخازن فولادی دیگر دارد زنگ ناپذیری آن می باشد. بهترین نوع متریال برای مخازن آب استنلس استیل ۳۰۴ می باشد زیرا همانطور که می دانید استیل ۳۰۴ گریدی از استیل است که برای استفاده در صنایع غذایی کاربرد دارد ولی این نکته را هم باید در نظر گرفت که مخازن آب در کارخانجات و نقاط صنعتی در حجم های بسیار بزرگ ساخته می شود و به دلیل قیمت بالای مخزن استیل هزینه تمام شده ی بسیار بالایی را برای خریدار در بر خواهد داشت .
تولید مخازن گالوانیزه
تولید مخزن گالوانیزه معمولا به صورت جوشی می باشد زیرا جوش دارای استحکام بالایی است و در برابر خمش و ضربه مقاومت بالایی دارد. البته برخی مخازن گالوانیزه مکعبی که برای نگهداری آب استفاده می شود بدون جوش تولید می شوند و با استفاده از پیچ و عایق های آب بندی مونتاز می شوند این مدل از مخزن های گالوانیزه که از نمونه مخزن آب فایبر گلاسی الگو گرفته اند به مخزن آب چینی نیز معروف هستند. ولی همانطور که می دانید استفاده از آن به عنوان مخزن آب قسمتی جزئی از مصارف این نوع مخزن ها است. در تولید مخزن گالوانیزه معمولا از روش جوش برق و الکترود استفاده می شود مگر در مواردی که مخزن برای کاربری خاص استفاده شود که در آن صورت نیز طراح در نقشه نوع جوشکاری را ذکر خواهد کرد. در مواردی که مخزن برای فعالیتی خاص ساخته می شود معمولا از جوش CO2 استفاده می شود.در تولید مخزن گالوانیزه دو جداره در واقع ما با دو مسئله روبرو هستیم یکی فشار بین دوجداره مخزن و دیگری فشار داخل مخزن اصلی است زیرا در مخزن های دو جداره معمولا بین دو جداره آب بسیار داغ یا بخار وجود دارد و محاسبات فشار در این مخازن از اهمیت ویژه ای برخوردار است.

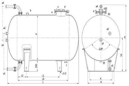
مشخصات هندسی و فنی مخزن گالوانیزه
منبع ذخیره گالوانیزه را به صورت مکعبی و یا استوانه ای و معمولا به صورت خوابیده و یک پارچه میسازند. ولی در صورتی که منبع جای مناسب برای قرار گیری نداشته باشد آن را به صورت عمودی هم میسازند. این مخزن ها را در احجام مختلف بین 100 الی 100000 هزار لیتر تولید مشوند. ولی بسته به نیاز ابعاد بزرگتر هم قابل ساختن است. این مخزن مقاومت فشار بالایی دارد و فشار درونی آب را به خوبی تحمل میکند.
اجزای مخزن گالوانیزه
مخزن گالوانیزه از سه قسمت تشکیل شده است.
- پایه ها یا Legs که به Saddle هم معروف است.
- بدنه یا Shell که از دو جزء کلگی و بدنه تشکیل میشود.
- ملحقات دیگر شامل دریچه، ورود و خروج و دیگر لوله و اتصالات.
مخزن ورق سفید یا GALVANIZED در فرم های مختلفی همچون:
منبع مکعبی
مخزن گالوانیزه استوانه ای
تانکر بیضی آب
مخزن فلزی عمودی
منبع آب افقی
مخازن تحت فشار
البته نکات بسیار زیادی در طراحی مخزن وجود دارد و موارد بالا که به آن اشاره کردیم صرفاً جهت انتخاب درست شکل مخزن گالوانیزه بود.در طراحی یک مخزن حتما باید تنش و کرنش های درونی و بیرونی به جداره مخزن محاسبه شود و با به دست آوردن برآیند این مقادیر ضخامت ورق مورد استفاده در مخزن انتخاب شود. با انجام گام به گام این نکات ما مخزنی طراحی خواهیم کرد که هم از لحاظ استانداردهای جهانی و هم به لحاظ میزان رضایت مندی مشتری در سطح عالی از کیفیت قرار دارد.
